 
            
          Mobile #: (202) 210-6448
Email: [email protected]
Mobile #: (240) 461-3928
Email: [email protected]
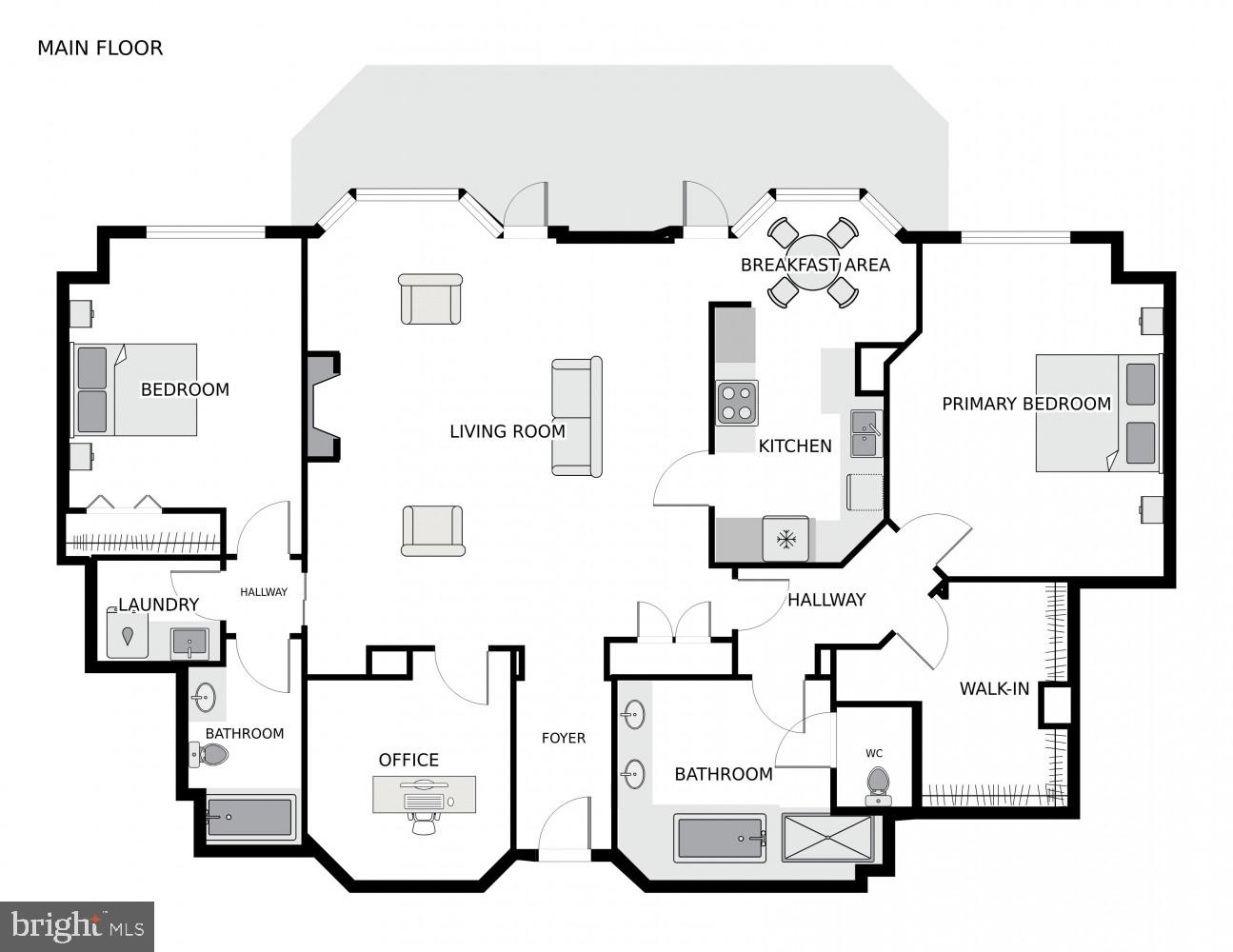
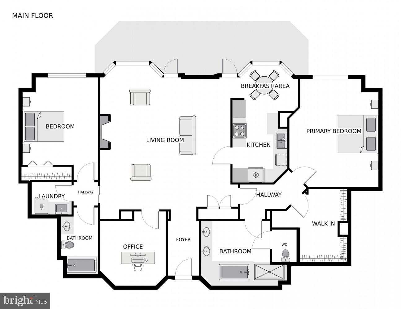
Luxury Living at Its Finest - The Parc at Somerset is one of the most exclusive addresses in the DMV. This exquisite 2-bedroom + DEN residence offers 1,815 sq. ft. of elegantly appointed living space, combining sophistication and comfort. Step into a modern green marble foyer and hardwood floors that lead to a generous living room with it's tree lined view terrace that wraps the living, dining and kitchen. The living area flows seamlessly into a formal dining room adorned with a crystal chandelier and perfect for entertaining.
The gourmet kitchen features full windows surrounding the eat-in dining area with terrace access, custom cabinetry, granite countertops, and professional-grade appliances. The luxurious owner's suite offers a cozy entry hall, spa-like bath with a walk-in glass shower, soaking tub, dressing area, and a generous walk-in closet.
Adjacent to the owner's wing is a spacious den ideal for a library or home office, a generous second bedroom, shared full bath, and a walk-in laundry room with storage and a second sink.
Residents enjoy resort-style amenities including:
The Parc's inviting circular drive has front valet, two-story elegant lobby, side sitting room for guests, community room, 24-hour front desk and gorgeous halls.
Somerset Spa & Sports Club's resort amenities include heated indoor lap pool, outdoor pool with sundeck, whirlpool spa, saunas, tennis courts, racquetball and squash facilities, state-of-the-art fitness center, art and yoga studio. Elegant lounges, card and billiard rooms, and a refined residents' club room for entertaining and social gatherings.
Security and service are paramount, with a 24-hour staffed gatehouse dand full-time on-site management, ensuring peace of mind and effortless living. The landscaped grounds with mature trees, walking paths leaving a tranquil retreat just minutes from the vibrant energy of Friendship Heights.
Blocks from the Friendship Heights Metro, fine dining, shopping boutiques, and so much more.